An Indian Palimpsest Student Work with Sara Belrhaiti

Hyderabad is the capital of the new state of Telangana in India, from the state division of Andhra Pradesh in 2014. While our class was welcomed by the
students of Jawaharlal University of Architecture and fine arts for two weeks, we explored and analysed the city districts and their housing typologies. We also collected data about the specificities of the geographical and hydrological qualities of some areas.

The new government has chosen the Panjagutta district in the center of the
immense metropolis to install the district of its officers.
The entire former neighborhood was destroyed to allow the construction of the Governor’s residence and the officers’ housing project.
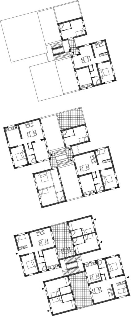
In this expanding city and to avoid another tabula rasa, I imagined a neighborhood with resilient typologies of housing.

The students were asked to design the housing for government officers (High
Income Group), officials (Middle Income Group) and maintenance and security staff (Low Income Group). All housing is designed to be able to
combine, divide or become denser in anticipation of a rapidly changing
society (constant expansion of the middle class). Combining courtyards and stairs enables the principle of housing resilience. That is to say that the housing can grow both vertically and / or horizontally.

Housing plan for “Low Income Group”





Housing facade for “High and Middle Income Group”

“Hyderabad Wet, Hyderabad Dry?”
Exhibition at galerie Marengo
Bordeaux Architecture Biennale, 2017
Exhibition installation Hyderabad wet, Hyderbad Dry? under the direction of J. Kent Fitzsimons for the Biennale of Architecture of Bordeaux, Agora 2017 at the Marengo Gallery, designed by the RCR Artotec architectural firm, winner of the 2017 Pritzker Prize.
The installation offers a tactile and visual experience to raise visitors’ awareness of
the geographical and hydrological qualities of Hyderabad, but also its fragility in the face of economic and demographic growth that inevitably leads to a blazing construction activity.


