Patio Tiny house

Material Recovery / Wooden Frame

Calendar : Completion 2023
Program : 1 private housing
Location : Asnières-Sur-Seine
Surface : 45 m²
Team : C-ingénierie
Contractor : La Manufacture
Budget : 150 000 €HT
©Photos : Christophe Bonnière

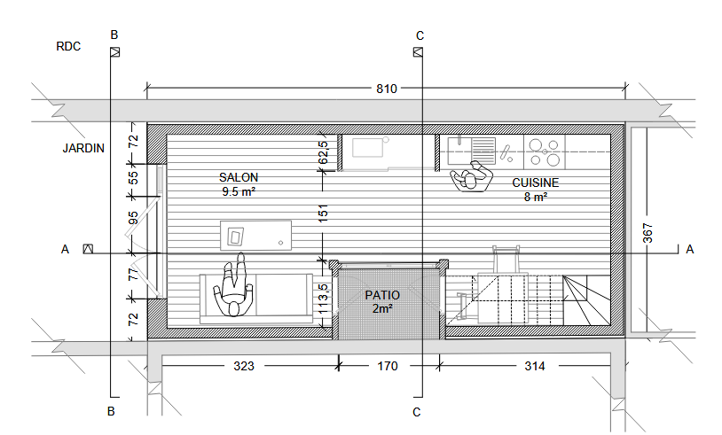
Submission of a construction permit for a project at the back of a plot in an urban
setting of the inner suburbs of Paris. It is a house of 45 m², the width of the plot is 3m60. The constraints impose a single facade and a very slight elevation.
To overcome the problem of the «hollow tooth», a small patio is opened in the
center of the accommodation. The patio allows ventilation of the kitchen and brings in a little light thanks to a set of mirrors.

The «Tiny House» has a wooden frame on screw piles. The frame will be constructed from wood from French sustainably managed forests, the black sheet metal of the facade were found on site. Development of technical details and execution plans. Adjustment of the choice of materials / structure with a wood engineer and a carpenter from the ALTER-Bâtir network to fit into the budget.